Licitatie
Comparte

LEVANTAMIENTO DE PLANOS ARQUITECTO-SE

PRET: 100
Vizualizări 74914
25.03.2026
Proprietar
PRET: 100 -25.03.2026
Vizualizări 74914

Sumele Licitate
Vizualizări 74914
25.03.2026
No Results Found !

Oferte si Cereri de Munca

Descripción

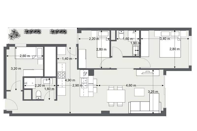
*¿Qué es el levantamiento de planos?

 

Por levantamiento de planos entendemos el dibujo de una representación que sea esquemática y con una cierta escala de una finca o construcción inmobiliaria, ya sea esta destinada para vivienda o para otro tipo de usos. En otras palabras, el levantamiento de planos es la obtención de los planos, que deben de ser realizados por un profesional acreditado para ello. 

 

Un plano es el documento gráfico que muestra de manera clara y perfectamente comprensible para quien sepa interpretarlo (e, incluso, para quien no teniendo conocimientos amplios sobre la materia sea capaz de establecer unas ciertas pautas) datos tales como la distribución, las medidas del inmueble, la estructura de esa construcción y, en algunos casos, su representación de planta y alzado.

 

*Transmitiendo ideas

 

Uno de los elementos fundamentales en el levantamiento de planos es la transmisión de una idea, concretamente de una idea veraz, concreta y específica del espacio al cual hacemos referencia. En otras palabras, el levantamiento de planos es el contrapunto gráfico a cualquier tipo de descripción que podamos hacer sobre el inmueble de forma verbal o escrita, y que, por la misma limitación del lenguaje, quedará siempre inexacta e incompleta sin esa representación gráfica. 

 

En el levantamiento de planos es frecuente encontrar que se adjuntan fotografías para crear una sensación de veracidad aún mayor sobre lo afirmado gráficamente. Con todo, cabe afirmar que estas fotografías, aunque siendo útiles, en modo alguno pueden sustituir, tal cual, la información proporcionada por un plano.

 

Para contactar y recibir su presupuesto, pueden hacerlo en el WhatsApp 652452040 y/o el e-mail: m3acis@outlook.es

 

Le esperamos, que tengan un buen día. -SE

Vendedor

Chris Davis

Proprietar

Pe site din ian. 2025

Precio: 100

Cantabria, Maliaño

Reseñas
0 Reseñas para mostrar
 
Anuncios similares
Licitatie
CHOFER C+E
Proprietar

Alfaro - 04.04.2026

100
Licitatie
PROYECTO/OBRA SóTANOS Y BúNKERS-AG
Proprietar

Santa Úrsula - 04.04.2026

100
Licitatie
SE NECESITAN RECEPCIONISTAS, GERENTE DE...
Proprietar

Alfaro - 05.04.2026

100
Licitatie
TASACIóN LOCALES COMERCIALES-SE
Proprietar

Ciudad de Melilla - 05.04.2026

100
//
This website is owned by
www.zappinvestment.com
World's AI Investment Fund